A deux pas de l'avenue de Flandre et du canal de l'Ourcq, la rue de Nantes est une petite rue parisienne faite d’immeubles de faubourg et d'immeubles haussmanniens. Le projet s'insère en douceur dans une parcelle étroite bordée de mitoyens denses.



A deux pas de l'avenue de Flandre et du canal de l'Ourcq, la rue de Nantes est une petite rue parisienne faite d’immeubles de faubourg et d'immeubles haussmanniens. Le projet s'insère en douceur dans une parcelle étroite bordée de mitoyens denses.


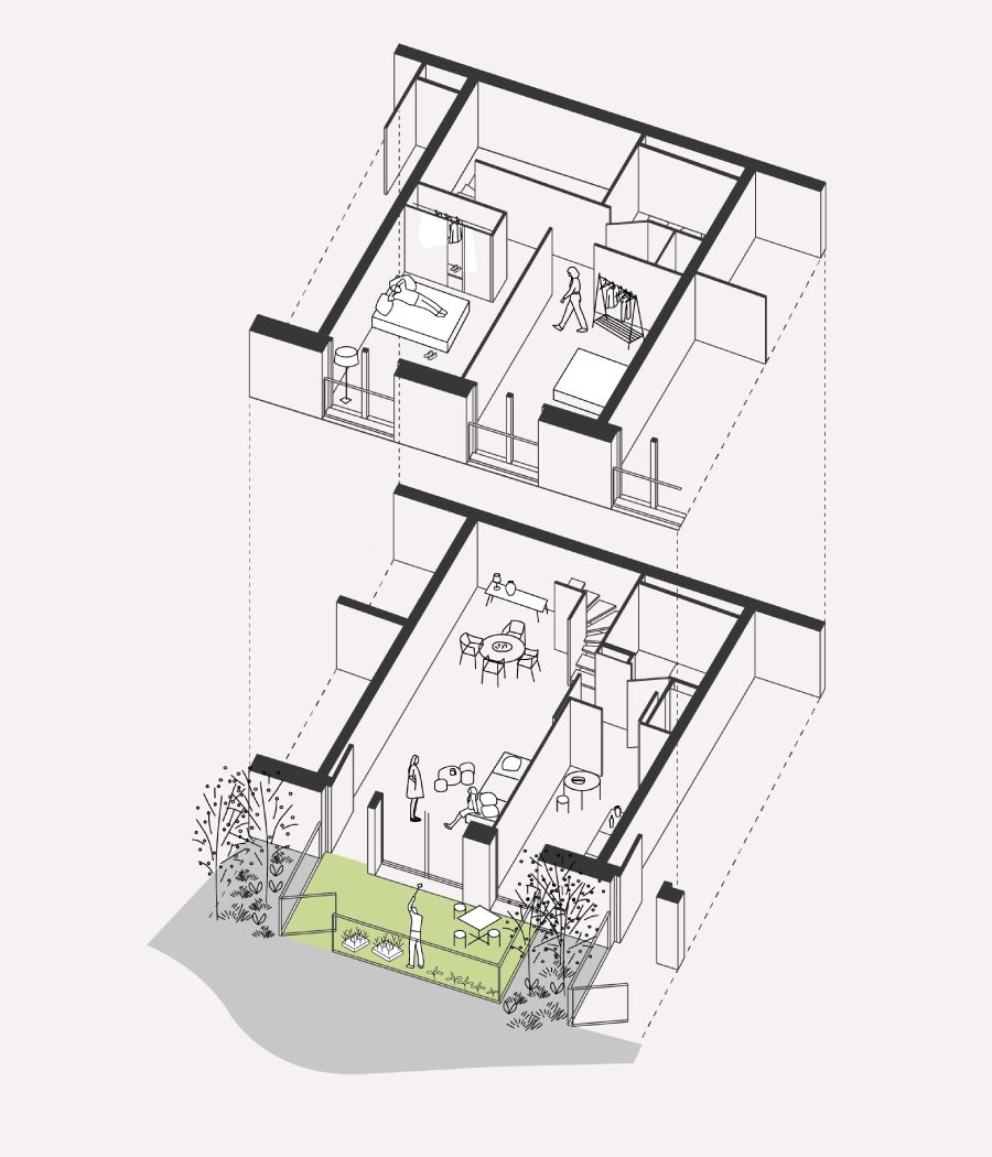
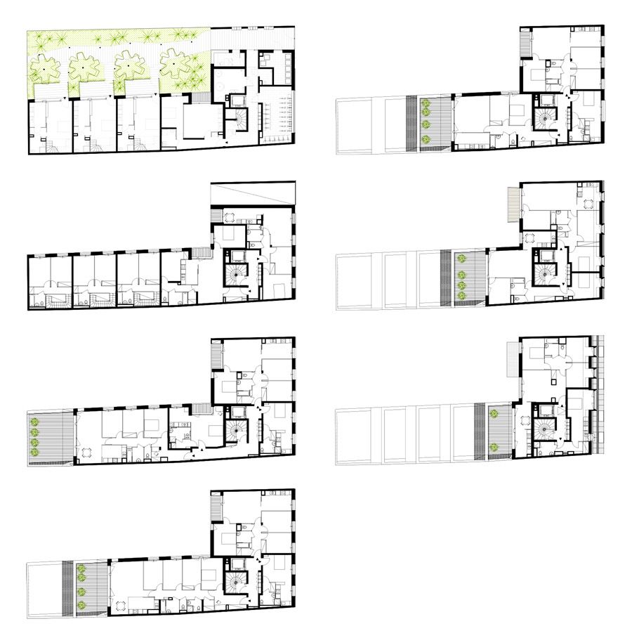
Côté rue, le projet prolonge sobrement le paysage du front bâti. Côté jardin, il se développe en gradins pour dégager de larges terrasses au sud et ouvrir des vues sur le ciel.



Le bâtiment est habillé d'une façade en tuiles de terre cuite émaillée noire aux reflets changeant selon la lumière de la journée. Le petit collectif qui s'intègre à son environnement citadin en un simple tour d’adresse et offre sur le coeur d'îlot, une belle perspective d'habitat convivial et verdoyant.








Pour mettre de l'art dans la vie quotidienne, l'Atelier YokYok a réalisé une intervention artistique sur les murs des parties communes – des silhouettes qui scénographient l'espace et accompagnent les habitants dans leurs cheminements quotidiens.
Maître d'ouvrage : Paris Habitat - Intervention artistique : YokYok - Surface : 1 300 m² sdp - Coût travaux : 3 M€ HT - Eco-conception : BBC Effinergie - H&E profil A Option Performance - Livraison : 2015
Photos : Takuji Shimmura
